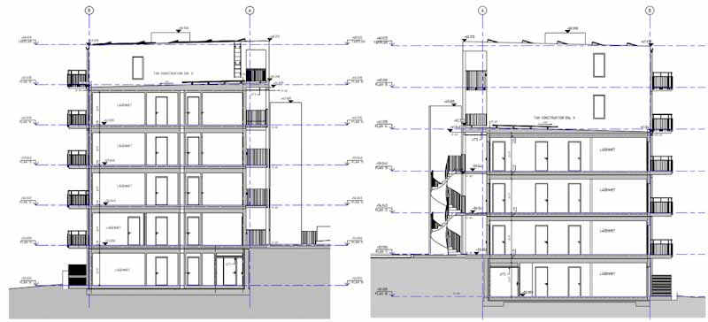
Ålen Örnsköldsvik

Flerbostadshus med 69 lägenheter på ca 4300 kvm

Beställare: Amasten

Vår leverans:
A-Bygglovsrevidering
A- Bygghandling
K- Grund projektering
K-Takprojektering

 

Vårt uppdrag i projeket

Vi har projekterat och tagit fram en hel del A- & K-handlingar i projektet.

Uppdraget omfattade A-bygglovsrevidering samt framtagning av fullständiga A-bygghandlingar med uppdaterade plan-, fasad- och sektionsritningar. Inom konstruktion utfördes K-projektering av grund med dimensionering, armeringsritningar och detaljlösningar baserade på geotekniska förutsättningar.

Vidare genomfördes K-takprojektering med lastnedräkning för snö- och vindlaster, dimensionering av bärande taksystem samt konstruktionsdetaljer.

Samtliga handlingar togs fram enligt gällande Eurokoder, EKS och BBR och levererades som komplett bygghandlingsunderlag för produktion.

    Etiam magna arcu, ullamcorper ut pulvinar et, ornare sit amet ligula. Aliquam vitae bibendum lorem. Cras id dui lectus. Pellentesque nec felis tristique urna lacinia sollicitudin ac ac ex. Maecenas mattis faucibus condimentum. Curabitur imperdiet felis at est posuere bibendum. Sed quis nulla tellus.

    ADDRESS

    63739 street lorem ipsum City, Country

    PHONE

    +12 (0) 345 678 9

    EMAIL

    info@company.com