Radhus i Norby, Uppsala

Vi har medverkat i projekt med radhus på Ca 1900 kvm i Uppsala

Vår leverans:
A – Bygghandling
K- Grund projektering

Beställare: TG11

Vårt uppdrag i projeket

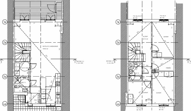
Uppdraget omfattade framtagning av kompletta A-bygghandlingar med plan-, fasad- och sektionsritningar, detaljer i skala 1:50 samt tekniska beskrivningar anpassade för produktion.

Inom K utfördes grundprojektering med lastnedräkning från överbyggnad, dimensionering av grundsystem baserat på geotekniska förutsättningar samt kontroll av bärförmåga och sättningar enligt Eurokod och EKS.

Leveransen inkluderade konstruktionsritningar för bottenplatta och kantbalkar, armeringsritningar samt anslutningsdetaljer mot stomme.

Samtliga handlingar togs fram som komplett och produktionsanpassat bygghandlingsunderlag.

    Etiam magna arcu, ullamcorper ut pulvinar et, ornare sit amet ligula. Aliquam vitae bibendum lorem. Cras id dui lectus. Pellentesque nec felis tristique urna lacinia sollicitudin ac ac ex. Maecenas mattis faucibus condimentum. Curabitur imperdiet felis at est posuere bibendum. Sed quis nulla tellus.

    ADDRESS

    63739 street lorem ipsum City, Country

    PHONE

    +12 (0) 345 678 9

    EMAIL

    info@company.com