Trollhättan Kuratorn

Studentborstäder, Flerbostadshus

Beställare:
Ride Entreprenad AB

Vår leverans:
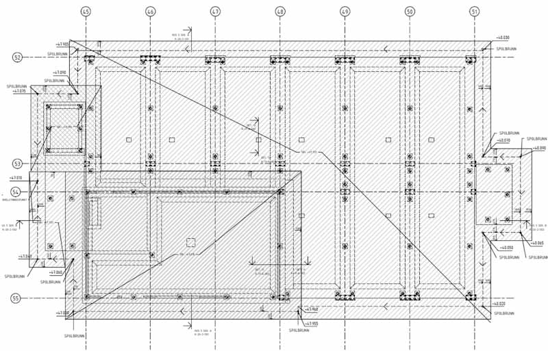
K-Grund och Tak projektering

Vårt uppdrag i projeket

Uppdraget omfattade grundprojektering med lastnedräkning från stomme, dimensionering av grundsystem utifrån geotekniska förutsättningar samt kontroll av bärförmåga och sättningar enligt Eurokod och EKS.

Vidare genomfördes takprojektering med dimensionering av bärande taksystem för snö- och vindlaster, inklusive stabiliserande verkan och infästningar mot stomme.

Leveransen omfattade konstruktionsritningar, armeringsritningar, sektioner och tekniska detaljlösningar.

Samtliga handlingar togs fram som komplett och produktionsanpassat bygghandlingsunderlag med fokus på säkerhet, funktion och kostnadseffektiv genomförbarhet.

    Etiam magna arcu, ullamcorper ut pulvinar et, ornare sit amet ligula. Aliquam vitae bibendum lorem. Cras id dui lectus. Pellentesque nec felis tristique urna lacinia sollicitudin ac ac ex. Maecenas mattis faucibus condimentum. Curabitur imperdiet felis at est posuere bibendum. Sed quis nulla tellus.

    ADDRESS

    63739 street lorem ipsum City, Country

    PHONE

    +12 (0) 345 678 9

    EMAIL

    info@company.com