Trollungen 1, Södertälje

Flerbostadshus med 18 lägenheter på Ca 400 kvm i Södertälje kommun.

Vår leverans:
Projektering samt Konstruktionsritningar 

Vårt uppdrag i projeket

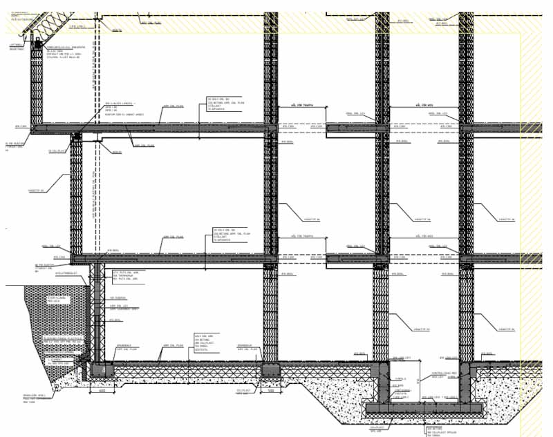
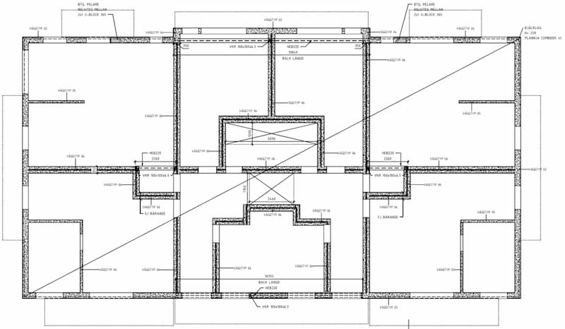
Uppdraget omfattade komplett dimensionering av bärande stomme med lastnedräkning enligt Eurokod och EKS, inklusive verifiering av bärförmåga, stabilitet och bruksgränstillstånd.

Arbetet inkluderade framtagning av konstruktionsritningar för grund, bjälklag, väggar och tak samt armeringsritningar och detaljlösningar för anslutningar mellan olika konstruktionsdelar.

Projekteringen samordnades med arkitekt och övriga tekniska discipliner för att säkerställa teknisk funktion, byggbarhet och kostnadseffektiv produktion.

Samtliga handlingar levererades som komplett och produktionsanpassat underlag.

    Etiam magna arcu, ullamcorper ut pulvinar et, ornare sit amet ligula. Aliquam vitae bibendum lorem. Cras id dui lectus. Pellentesque nec felis tristique urna lacinia sollicitudin ac ac ex. Maecenas mattis faucibus condimentum. Curabitur imperdiet felis at est posuere bibendum. Sed quis nulla tellus.

    ADDRESS

    63739 street lorem ipsum City, Country

    PHONE

    +12 (0) 345 678 9

    EMAIL

    info@company.com