Gråalen - Flerbostadshus

Beställare: Slättö
Flerbostadshus, 133 lägenheter
Norrtälje kommun

Här uppförs bostäder i 4-6 våningar i 8 st byggnader, varav 4 med en stomme i CLT – korslaminerat trä. Till projektet hör förutom garage ett LSS-boende och även en ungdomsgård.

Vårt uppdrag i projeket

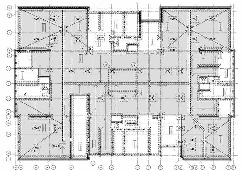
Vi har projekterat grund och tak med beräkningar och handlingar för konstruktion samt landskapsritningar.
 
Grundläggningen är konstruktionsprojekterad och dimensionerad av ansvarig konstruktör.
 
Konstruktionshandlingar har upprättats som redovisar laster, bärförmåga, dimensioner, armering och utförandeprinciper, och utgör tekniskt underlag för produktion enligt gällande normer och regelverk.
 
Unikt i projektet är stomsystem i limträ som bärande konstruktion. Genomgående har fokus varit hållbarhet tex med sedumtak.

    Etiam magna arcu, ullamcorper ut pulvinar et, ornare sit amet ligula. Aliquam vitae bibendum lorem. Cras id dui lectus. Pellentesque nec felis tristique urna lacinia sollicitudin ac ac ex. Maecenas mattis faucibus condimentum. Curabitur imperdiet felis at est posuere bibendum. Sed quis nulla tellus.

    ADDRESS

    63739 street lorem ipsum City, Country

    PHONE

    +12 (0) 345 678 9

    EMAIL

    info@company.com