NYBYGGNATION - SPANNLANDET

Kv. SPANNLANDET 1, Täby, 100 lägenheter i tre hus om 6,5,1 våningar

Beställare: NRE
Arkitekt: Arkitema Architects
Uppdrag: Konstruktionshandlingar

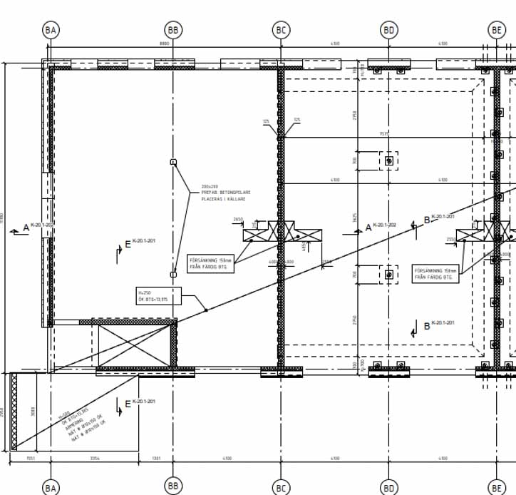
Vårt uppdrag i projeket

Vi har projekterat grunden med konstruktionshandlingar till grundläggningen.
 
Uppdraget omfattade dimensionering av grundsystem baserat på geoteknisk undersökning, inklusive val av grundtyp, lastnedräkning och kontroll av bärförmåga samt sättningar.
 
Arbetet inkluderade framtagning av konstruktionsritningar för bottenplatta, kantbalkar, pålar eller plintar samt armeringsritningar och detaljlösningar för anslutningar mot stomme. Även grundsektioner, armeringsspecifikationer och tekniska beskrivningar togs fram enligt gällande Eurokoder och EKS.
 
Handlingarna levererades som komplett bygghandlingsunderlag för produktion, med fokus på säkerhet, funktion och kostnadseffektiv genomförbarhet.

    Etiam magna arcu, ullamcorper ut pulvinar et, ornare sit amet ligula. Aliquam vitae bibendum lorem. Cras id dui lectus. Pellentesque nec felis tristique urna lacinia sollicitudin ac ac ex. Maecenas mattis faucibus condimentum. Curabitur imperdiet felis at est posuere bibendum. Sed quis nulla tellus.

    ADDRESS

    63739 street lorem ipsum City, Country

    PHONE

    +12 (0) 345 678 9

    EMAIL

    info@company.com