NYBYGGNATION - PENNINGLANDET 1

Kv. Penninglandet 1, Täby, 175 lägenheter i tre lamellhus om 4, 5, 6 våningar samt ett punkthus på 10 våningar med gemensam garage

Nybyggnad

Beställare: Slättö Förvaltning AB
Arkitekt: Arkitema Architects
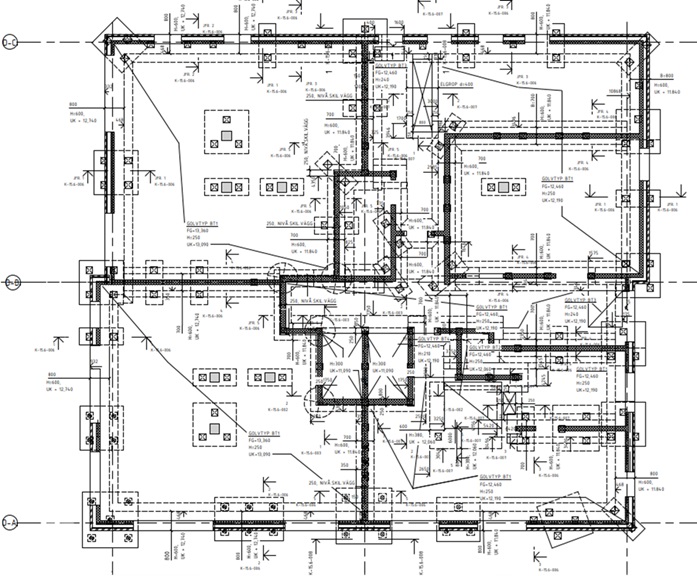
Uppdrag: Konstruktionshandlingar – Grund
Byggstart: ÅR 2017

Vårt uppdrag i projeket

Vi har projekterat grunden med konstruktionshandlingar till grundläggningen.
 
Grundläggningen är konstruktionsprojekterad och dimensionerad av ansvarig konstruktör.
 
Konstruktionshandlingar har upprättats som redovisar laster, bärförmåga, dimensioner, armering och utförandeprinciper, och utgör tekniskt underlag för produktion enligt gällande normer och regelverk.

    Etiam magna arcu, ullamcorper ut pulvinar et, ornare sit amet ligula. Aliquam vitae bibendum lorem. Cras id dui lectus. Pellentesque nec felis tristique urna lacinia sollicitudin ac ac ex. Maecenas mattis faucibus condimentum. Curabitur imperdiet felis at est posuere bibendum. Sed quis nulla tellus.

    ADDRESS

    63739 street lorem ipsum City, Country

    PHONE

    +12 (0) 345 678 9

    EMAIL

    info@company.com