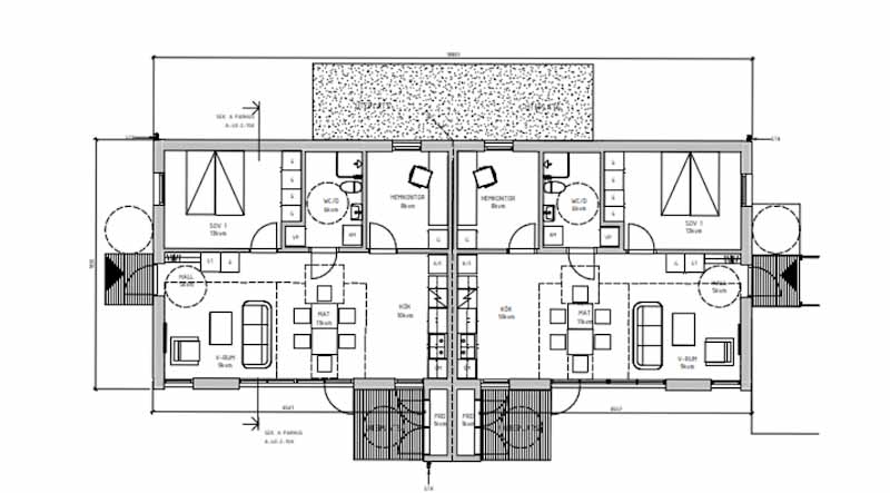
Parhus i Flen

Vi har medverkat i projekt om 5 Parhus samt Attefallshus på Ca 800 kvm

Beställare: TG11

Vår leverans:
A – Bygglovshandling
K- Grund projektering

Vårt uppdrag i projeket

Uppdraget omfattade framtagning av A-bygglovshandlingar med plan-, fasad- och sektionsritningar samt situationsplan anpassad till gällande detaljplan och byggregler.

Inom K utfördes grundprojektering med lastnedräkning från överbyggnad, dimensionering av grundsystem baserat på markförutsättningar samt kontroll av bärförmåga och sättningar enligt Eurokod och EKS.

Leveransen inkluderade konstruktionsritningar för bottenplatta och kantbalkar, armeringsritningar samt tekniska detaljlösningar. Samtliga handlingar togs fram som komplett och produktionsanpassat underlag inför byggstart.

    Etiam magna arcu, ullamcorper ut pulvinar et, ornare sit amet ligula. Aliquam vitae bibendum lorem. Cras id dui lectus. Pellentesque nec felis tristique urna lacinia sollicitudin ac ac ex. Maecenas mattis faucibus condimentum. Curabitur imperdiet felis at est posuere bibendum. Sed quis nulla tellus.

    ADDRESS

    63739 street lorem ipsum City, Country

    PHONE

    +12 (0) 345 678 9

    EMAIL

    info@company.com