Älgen 7, Nyköping - Nybyggnation av villa.

Bygglovshandlingar med visualisering.

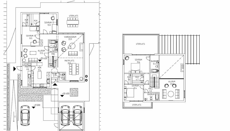
Vårt uppdrag i projeket

Vi på Svea Ingenjörsbyrå har utfört bygglovshandlingar för nybyggnation av villa i Nyköping.
 
Uppdraget omfattade framtagning av situationsplan med korrekt placering på tomten, planritningar för samtliga våningsplan, fasadritningar från alla väderstreck samt sektionsritning som redovisar byggnadens höjd och konstruktion.
 
Samtliga handlingar upprättades fackmannamässigt, måttsatta och anpassade efter gällande detaljplan och byggregler.
 
Underlaget togs fram för att säkerställa en smidig bygglovsprocess och skapa bästa möjliga förutsättningar för startbesked och genomförande.

    Etiam magna arcu, ullamcorper ut pulvinar et, ornare sit amet ligula. Aliquam vitae bibendum lorem. Cras id dui lectus. Pellentesque nec felis tristique urna lacinia sollicitudin ac ac ex. Maecenas mattis faucibus condimentum. Curabitur imperdiet felis at est posuere bibendum. Sed quis nulla tellus.

    ADDRESS

    63739 street lorem ipsum City, Country

    PHONE

    +12 (0) 345 678 9

    EMAIL

    info@company.com